ImageMeter中文版是一款极为专业且实用的智能测量工具软件。它能够直接在照片上实现精准测量,用户只需拍摄现场照片并设定参考尺寸,就能迅速获取长度、角度以及面积等数据,尤其适用于测量那些难以触及的区域。此外,ImageMeter中文版还能为用户的测量提供参考矩形,在测量过程中会充分考虑所有透视缩短的情况,确保测量结果的准确性。同时,该软件对蓝牙激光测距设备给予了最为广泛的支持。
1、在本站安装点击打开进入,图中有示例文件可以参考。
2. 点击示例进入,里面有四张示例图片。
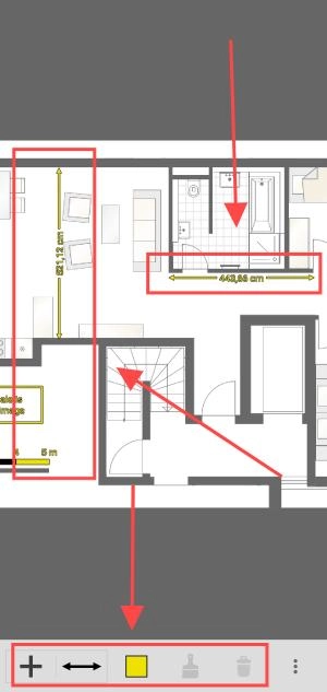
3、点击一个,底部框中是标注尺寸的工具。
imagemeter中文版能够根据上传的照片测量多种数据,能够帮助用户在没有工具的情况下进行测量,让用户能够直接得出多种数据,感兴趣的用户可以软件体验一下。
1、公制单位与英制单位(小数英寸以及小数英寸)。
2、上下文相关的光标捕捉可以快速准确地绘制。
3、可选择将图像上传至云存储,用于备份,或实现图像在多个设备间自动同步。
4、具有自动补全功能的快速正确的值输入。
5、于杆上利用两个参考标记对杆的高度进行测量。
6、基于单个参考测量为基准,来测量长度,角度,圆形和任意形状的区域。
7、文字注释,录音,画中画以获取细节图像。
8、写意图,绘制基本的几何形状。
9、可导出为PDF、JPEG以及PNG格式。
10、把图像归类到带有颜色代码的子文件夹中。
11、与激光测距仪的蓝牙连接,用于测量长度,面积和角度。
1、便捷的测量工具,适用于多种场景。
2、将测量结果保存为图片或PDF格式。
3、提供多种语言支持,助力用户更便捷地使用。
4、该软件可满足各类领域的测量需求。
imagemeter中文版处理透视图的过程极为短暂,可帮你大幅节省时间,同时还能准确计算测量值。它适用于各类场景,能充分满足用户的使用需求,是一款十分好用的智能测量工具软件。





小熊猫辅助器
其他软件
蓝海搜书
手机软件
AI解题大师
pc软件
e站最新版
手机软件
777影视
手机软件
mufyai中文版
其他软件
花简空间
手机软件
妖精动漫3.0.3版本
手机软件
popo原创市集
其他软件
咪咪爱
休闲娱乐
查看咪咪爱
休闲娱乐